オーバーハイトスプレッダー(OHSP)
コンテナの天井よりも背の高い荷役もお任せください。※手動操作式
ガントリークレーンやトランスファークレン、ストラドルキャリアのマザースプレッダーに取り付けることで、オープントップコンテナやフラットラックコンテナの吊り上げを可能にします。
特徴
1.簡単作業
通常のコンテナを吊り上げる要領でマザースプレッダーとオーバーハイトスプレッダーを連結します。
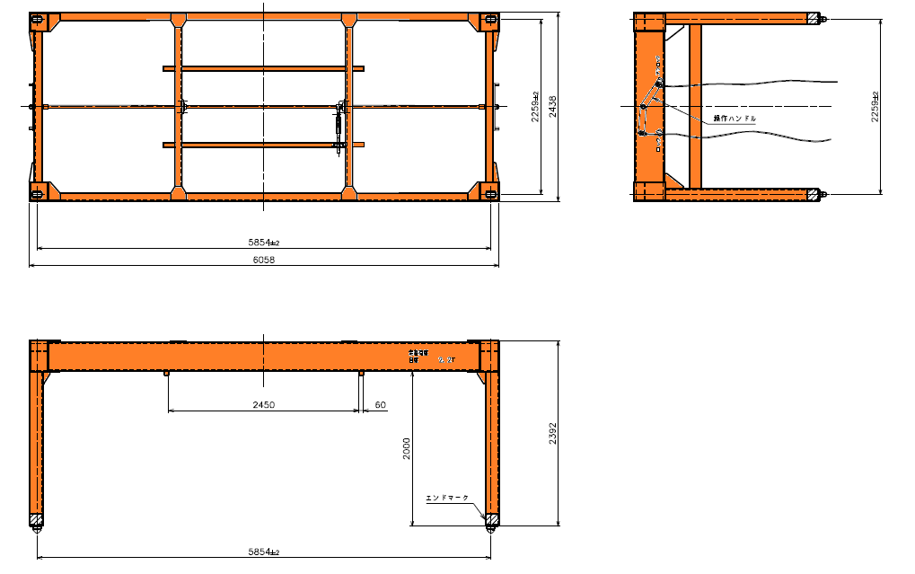
オーバーハイトスプレッダーのツイストロックを荷役するコンテナの隅金具に差し込み、手動レバーにてツイストロックのロック・アンロックを行います。
2.安心・安全
ツイストロックと4つの隅金具を用いて4点で吊るため、安全で確実な吊り上げ作業が可能です。
仕様
ISO規格のコンテナボックス(12ft・20ft・40ft)に対応。
荷役する製品のオーバーハイト状況により必要な脚長が変わるため、都度お打ち合わせさせて頂いております。
最大で脚長L=2,200mmまで対応可能。
- 40ft仕様参考図

- 20ft仕様参考図





